Project general facts
The Heights used experience in creating residental projects to create a unique ergonomic environment with residences. Each residence has private areas and acces to public spaces and on-site services. All residences are unique: spacious spaces with private patios, split-level lots with balcony.
This residential complex in Seseh, Bali, is an attractive combination of brown-toned architecture and green spaces. Surrounded by nature, it offers abodes where aesthetics merge with the rich natural environment. The architectural style, shades of brown, create a feeling of warmth and harmony with the environment. Green trees and grass enhance the natural beauty of the area, giving it a sense of peace and tranquility.
Finishing and materials
High quality finishing materials, natural materials
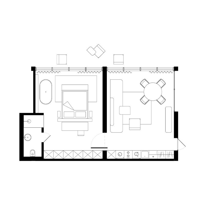
Kitchen and appliances
Fully equipped kitchen
Furnishing
Fully furnished
Parking
Shared parking
Location description and benefits
Seseh is a picturesque coastline located on the island of Bali in Indonesia. It is famous for its beautiful beaches, surrounded by green tropical forests. Situated in the southwest of the island, Seseh offers a tranquil and secluded atmosphere, ideal for rest and relaxation. In this area you can enjoy endless sandy beaches while watching the sunsets over the Indian Ocean.
Seseha's Bali location also offers easy access to local attractions including temples, restaurants and spas. Its proximity to cultural and natural attractions makes it an attractive destination for those seeking a balance between privacy and the opportunity to immerse themselves in island life.
Apart from its beautiful beaches and tranquil atmosphere, Seseh, Bali, also offers access to a variety of water sports such as surfing, diving and snorkeling. With its location close to famous magical islands such as Tanah Lot and Uluwatu, Seseh is the ideal base to explore the richness of Bali's culture and nature. In addition, local markets and restaurants offer authentic Balinese dishes and crafts, immersing visitors in the local culture and way of life.
39 m²
AED 623,838
81 m²
AED 1,091,313
59 m²
AED 860,973
152 m²
AED 0
Loading map...
We'll get back to you within 24 hours